History of The Grange at Northington
The Grange at Northington, Hampshire, is one of the finest examples of Greek Revival architecture in Europe. First built in the 1660s as a Palladian brick mansion, it was transformed in the early 19th century into a magnificent neoclassical residence resembling a Greek temple, complete with resplendent Doric portico. After years of neglect, the house was dramatically saved from demolition in 1975 when it was taken into state care, and now provides a striking venue for an annual festival of opera.

The First House
Sir Robert Henley (c.1624–92), a successful lawyer and politician, bought the estate and modest country house known as The Grange in 1662. Three years later, he commissioned the architect William Samwell to build a new impressive residence.
Samwell was a follower of Inigo Jones, the architect who introduced the Palladian style to Britain. Samwell created a grand brick mansion house which displayed his skill in planning and interior proportions. The great staircase was particularly magnificent, rising from the ground to the roof.
The Grange Transformed
The Grange was drastically transformed in the early years of the 19th century. The impulse for the transformation came from the young owner, Henry Drummond (1786–1860), whose grandfather, a successful banker, had bought the house from the Henley family. Rich and impulsive, he wanted to remodel the house in the latest neoclassical style, emulating the architecture of ancient Greek buildings.
In 1808 he commissioned his friend William Wilkins (1778–1839), a promising young architect and antiquary who had been much influenced by his recent travels to Greece and Asia Minor, to remodel the house.
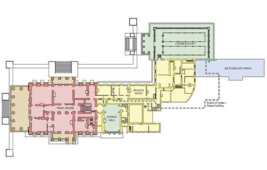
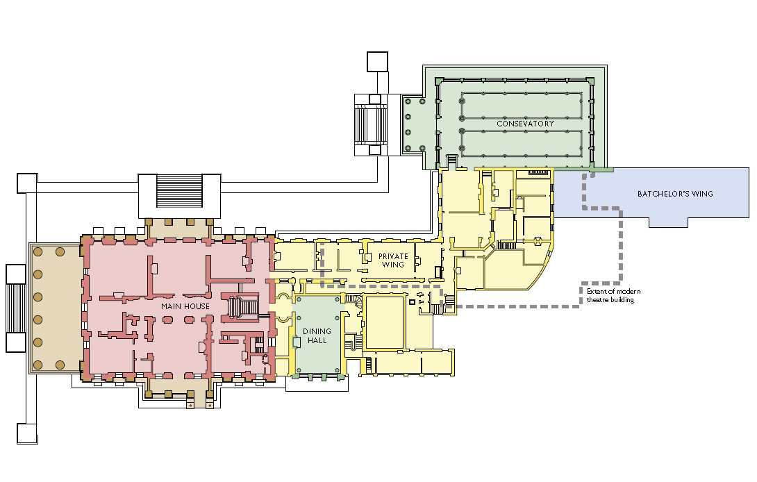
Unfortunately, Drummond disliked the result, and sold the estate in 1817 to his neighbour Alexander Baring (1773–1848), an international financier. Baring employed first Robert Smirke to extend the house to the west, and then Charles Robert Cockerell to finish this wing in 1823–5 with a conservatory and dining room.
Most of this later work was demolished in the 1970s, apart from the conservatory. This was converted into a ballroom in 1890.
Later History
The Grange and its estate were sold in 1933, and the buildings were occupied by the army during the Second World War.
In 1964 the family bought the estate back for use as a farm, and in 1969 they obtained planning permission to demolish the now empty house. The public outcry that ensued saved The Grange: the house, conservatory and a small area of pleasure ground were taken into state guardianship in 1975. Today The Grange provides a venue for opera performances, which take place in a custom-built theatre in the conservatory.
The Grange staircase, which was dismantled in the 1970s and then sold, was eventually bought back, and was reinstated in 2009 thanks to the generosity of members of Grange Park Opera.
Further Reading
Liscombe, RW, William Wilkins, 1778–1839 (Cambridge, 1980)
Brock, D, ‘John Webb, William Samwell and The Grange’, English Heritage Historical Review, 4 (2009), 99–121
Brown, L, The Slavery Connections of Northington Grange (report for English Heritage, 2010)
Find out more
-
Description of The Grange
Read a description of The Grange, one of the finest examples of Greek Revival architecture in Europe.
-
Download a plan of The Grange
Download this PDF plan of The Grange at Northington.
-
The Slavery connections of Northington Grange
Read this commissioned report from 2010 on the connections to slavery of Northington Grange.
-
More Histories
Delve into our history pages to discover more about our sites, how they have changed over time, and who made them what they are today.