Bolsover Castle
Bolsover Castle

History of Bolsover Castle

Perched on a ridge high above the Vale of Scarsdale, on the site of a medieval fortress, Bolsover Castle is an extraordinary 17th-century aristocratic retreat. The exquisite ‘Little Castle’ has remarkable wall paintings and interiors, and the Riding House is the earliest such building in England to survive complete.

Bolsover Castle seen from the air.
Bolsover Castle seen from the air. The Little Castle, on the left, stands on the end of a promontory

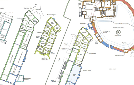
The Creation of the Little Castle

The castle was founded in the late 11th century by William Peveril, one of William the Conqueror's knights, but it was neglected from the mid-14th century. Its ruins provided the setting for the Little Castle begun in 1612 by Sir Charles Cavendish as a retreat from his principal seat at Welbeck, a few miles away.

The design of the Little Castle was intended to evoke a Norman great tower, which it clearly resembles viewed from a distance, rising sheer from the cliff. The interior continues the impression, with massive round Romanesque vaults in the basement and pointed Gothic ones on the entrance floor. The great windows of the upper floors were designed to give panoramic views across the landscape.

William Cavendish

When Charles Cavendish died in 1617, most of the structure was finished. His son William – playboy, poet courtier and later 1st Duke of Newcastle – inherited the Little Castle and completed the interiors with the help of the architect John Smythson.

What resulted was a kind of ‘toy keep’, housing tiers of luxurious state rooms. The exquisitely carved fireplaces and richly coloured murals and panelling of its exceptionally well-preserved and beautifully restored interiors still take the visitor on an allegorical journey from earthly concerns to heavenly delights.

William also added the vast and stately Terrace Range overlooking the Vale of Scarsdale, now a dramatic roofless shell. To show off his achievement, in 1634 he and his first wife, Elizabeth, hosted Charles I and Queen Henrietta Maria here. The entertainment Love’s Welcome, a masque specially written for the occasion by Ben Jonson, was performed in the Fountain Garden.

A painted panel in the Pillar Parlour, on the ground floor of the Little Castle. The interiors of the Little Castle were completed by William Cavendish
A painted panel in the Pillar Parlour, on the ground floor of the Little Castle. The interiors of the Little Castle were completed by William Cavendish

During the Civil War William fought for the Royalists, but he was defeated at the Battle of Marston Moor in 1644 and went into exile. His first wife had died the year before, and during his exile William met and married his second wife, Margaret. She had travelled to Paris as a maid of honour to Queen Henrietta Maria, wife of Charles I. 

On the Cavendishes’ return to England in 1660, William and Margaret began to restore their estates. At Bolsover, they rebuilt the state apartment in the Terrace Range and built the cavernous Riding House Range with its magnificent roof and viewing galleries. The Riding House is one of the earliest in England to survive complete and a landmark in British equestrianism. Here William indulged his passion for training great horses in stately dressage.

   

Read more about Margaret Cavendish
Painted ceiling in the Heaven Closet
View of the painted ceiling in the Heaven Closet which shows the Ascension of Christ

Wall Paintings at Bolsover

Many of the rooms throughout the Little Castle at Bolsover are richly decorated with wall paintings – rare survivals from the early 17th century. While the original artists are unknown, all the painted schemes throughout the building were completed during Sir William’s time, and particularly beautiful examples exist in the Heaven and Elysium Closets. These small rooms opened off William Cavendish’s bedchamber and were extremely private spaces, into which only the most privileged would have been invited.

The ceiling of the Heaven Closet features a painting of the Ascension, dated from 1619 and depicting angels surrounding the ascending figure of Christ, and Cherubium on the walls hold instruments of the Passion. The subject matter, with its Catholic associations despite William’s professed ambivalence in religious matters, could have been inspired by William’s travels on the continent.

The Elysium Closet which was probably used for intimate social gatherings features a frieze depicting various Roman gods such as Bacchus, the god of Wine representing liberation and fertility; Minerva, the goddess of wisdom holding her owl; and Mercury, the messenger god, with his winged hat.

Explore the Elysium Closet
The interior of the Riding House, built in the 1660s by William Cavendish
The interior of the Riding House, built in the 1660s by William Cavendish

Bolsover in Decline

Decline began under Cavendish's son Henry, who dismantled the state apartment. By the 1770s the Terrace Range was already in ruins. The estate passed to the Dukes of Portland, who kept the Little Castle as a retreat until the early 19th century. For most of the 19th century it was tenanted and used as a vicarage.

After Bolsover Colliery opened in 1889 the castle suffered from the effects of mining subsidence and pollution. In 1946 it was given to the Ministry of Works, who stabilised and repaired the buildings.

Waterspouts around the base of the Venus Fountain
Waterspouts around the base of the Venus Fountain

The Castle Today

Since 1984 the castle has been in the care of English Heritage. The parapets on the wall-walk have recently been restored, offering views out over the landscape, and the Fountain Garden, with the Venus Fountain as its centrepiece, has been replanted with period plants. Horses are now once again a regular sight at Bolsover.

 

 

Find out more